パークハイム横濱山手

パークハイム横濱山手 パークハイム横濱山手 パークハイム横濱山手 パークハイム横濱山手 パークハイム横濱山手 パークハイム横濱山手 パークハイム横濱山手 パークハイム横濱山手 パークハイム横濱山手 パークハイム横濱山手
パークハイム横濱山手
パークハイム横濱山手
パークハイム横濱山手
パークハイム横濱山手
パークハイム横濱山手
パークハイム横濱山手
パークハイム横濱山手
パークハイム横濱山手
パークハイム横濱山手
パークハイム横濱山手

5,690万 ローン計算 >

中古マンション

物件概要

所在地 神奈川県   横浜市中区 打越30
交通 JR根岸線 「石川町」 駅 徒歩12分
総戸数 127戸
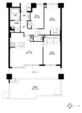
間取り 3LDK
所在階 1階 / 地上
建物の階数 10階 / 地上、1階 / 地下
専有面積 68.84m²
建物構造 RC
引渡可能年月 相談
築年月 2000年11月
向き
バルコニー面積 14.59m²
土地権利 所有権
施工会社 三井建設株式会社
管理会社 三井不動産レジデンシャルサービス株式会社
管理形態 全部委託
管理員の
勤務形態
日勤
管理費 14,350円
修繕積立金 17,160円
その他費用
情報更新日 2025/12/04
次回更新予定日 2025/12/18
駐車場
現況 空家
取引態様 仲介
設備・条件